

こんにちは、細田工務店です☆
今回は、1970年に建設されたマンションの大規模リノベーションの様子を、現場レポート形式でご紹介します。
普段なかなか見ることのできない工事現場の裏側から、完成までのストーリーを全3回シリーズでお届けしていきます!
◆「冬の寒さをなんとかしたい!」からリノベーションを決意


都心からのアクセスが良く、緑豊かな住宅街に建つ、全4棟からなる大規模マンション。オーナーのK様は、この物件をご親族から譲り受け、お住まいでした。
築56年の古い物件ですが、これまで一度もリノベーションされていなかったため、断熱性は低く、さらに1階住戸ということもあり、冬の寒さがお悩みだったそうです。
春から就学するお子さまのことを考え、断熱改修を含めた全面リフォームを決意されました。
リノベーションにあたっては、施工品質はもちろん、何かあったときに迅速に対応してくれる地元のリフォーム会社にお願いしたいと考えたそうです。さまざまな会社を調べていく中で出会ったのが、細田工務店。豊富な実績とノウハウがあることを知り、「ここなら安心して任せられる」とご相談いただきました。
古くなった設備や建具、床も新しくし、間取りも今の暮らしに合わせて使い勝手の良い空間へ。大規模リノベーションによって、安心・快適に暮らせる住まいへと生まれ変わります。
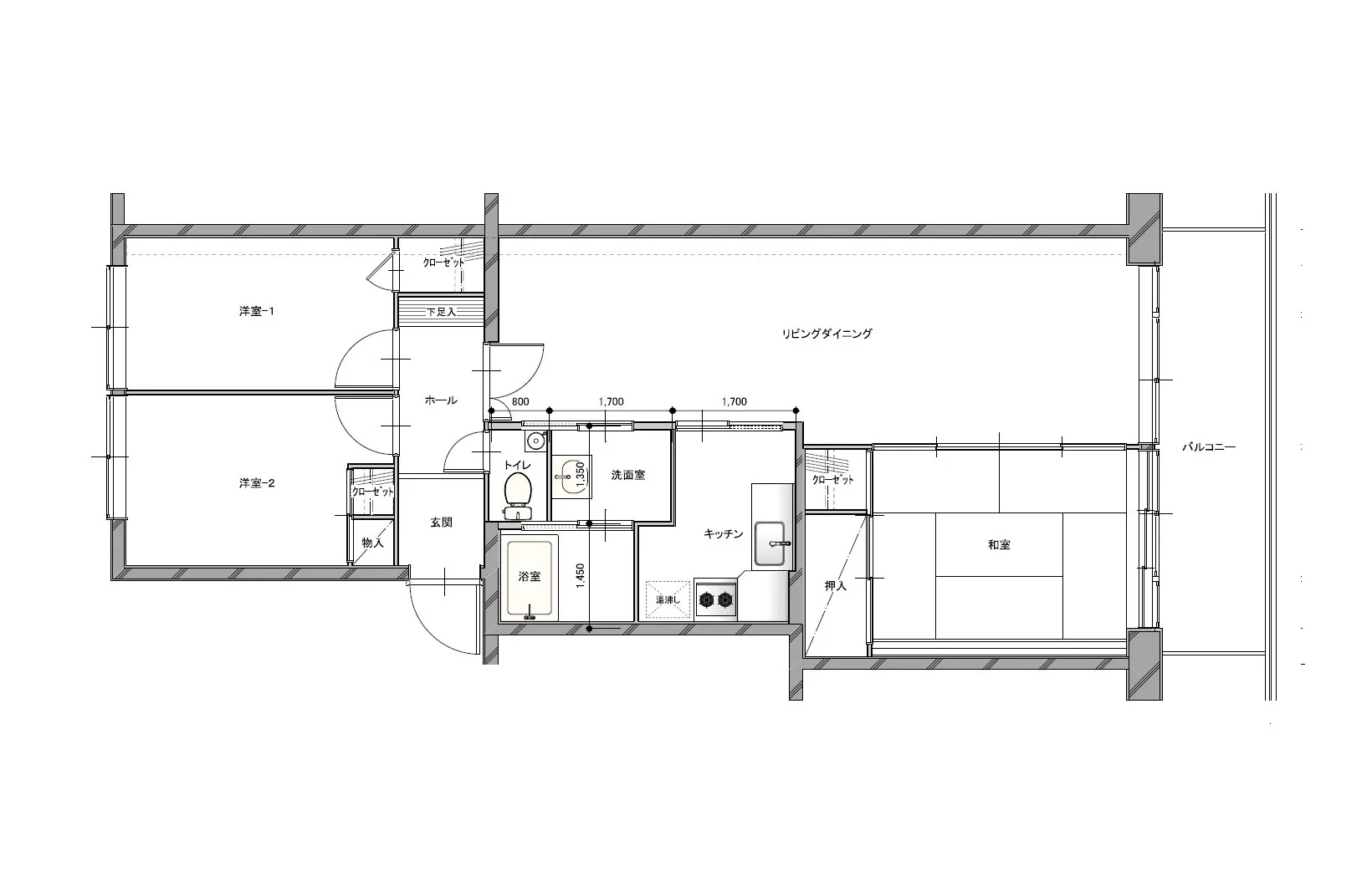
◆3LDK→2LDKへ、将来も見据えた開放的な住空間

これまでお住まいだった間取りは、リビングダイニング+キッチン+和室+洋室2室の3LDK。
K様からは、
というご要望をいただきました。
そこで、横並びの洋室2室は壁を取り払い、一部屋にして広々とした主寝室に。

リビング横の洋室は押入などを撤去し、子ども部屋へと変更しました。間取りの変更に併せて、部屋ごとに分散されていた収納はウォークインクローゼットへ集約。
さらに、リビング横に仕事や家事など多目的に使えるワーキングスペースを設け、K様ご家族のライフスタイルに合う間取りをご提案しました。

リビング隣接の洋室は、現在は家族と触れ合える子ども部屋に。将来はリビングの一部としてフレキシブルに活用できるよう、暮らしの変化を見据えて設計しました。
断熱改修では、床下にしっかりと断熱材を施工し、住まい全体の断熱性を向上させます。冬の寒さをやわらげ、家族がのびのびと快適に暮らせる住まいを目指して、リノベーション工事がスタートしました。
次回は、実際の工事現場の様子やリフォームによって生まれ変わった新しい住空間をご紹介します!お楽しみに!